UNDER CONSTRUCTION
$185,000
3 Bedrooms ~ 2 Bathrooms ~ 1,238 Square Feet
4550 North 26th Street
Omaha, NE 68110
This home, located at 4550 North 16th Street in Omaha, is currently under construction by NeighborWorks® Home Solutions. The exterior is high impact quality smart board siding. The interior is comprised of luxury vinyl tile flooring, carpet, laminate countertops and vanity tops with tile.
This floor plan is a modern space layout ranch design on a slab-on-grade. This three bedroom offers a functional kitchen with a great room. This home is furnished with ENERGY STAR range/oven, microhood, dishwasher and refrigerator. This home is equipped with an Energy Efficiency Electric Furnace and Electric Water Heater. Also, includes a 16 SEER Heat Pump and a whole house Humidifier.
UNDER CONSTRUCTION
2 Bedrooms ~ 1 Bathroom ~ 946 Square Feet
750 Mynster Street
Council Bluffs, IA 51501
This home, located at 750 Mynster Street in Council Bluffs, is currently under construction by NeighborWorks® Home Solutions in partnership with Habitat for Humanity Council Bluffs. The exterior is high impact quality smart board siding. The interior is comprised of luxury vinyl tile flooring, carpet, lamanite countertops and vanity tops with tile.
This floor plan is a modern space layout ranch design on a fully finished basement. This two bedroom offers a functional kitchen with a great room. This home is furnished with ENERGY STAR range/oven, microhood, dishwasher and refrigerator. This home is equipped with an Energy Efficiency Electric Furnace and Electric Water Heater. Also, includes a 16 SEER Heat Pump and a whole house Humidifier.
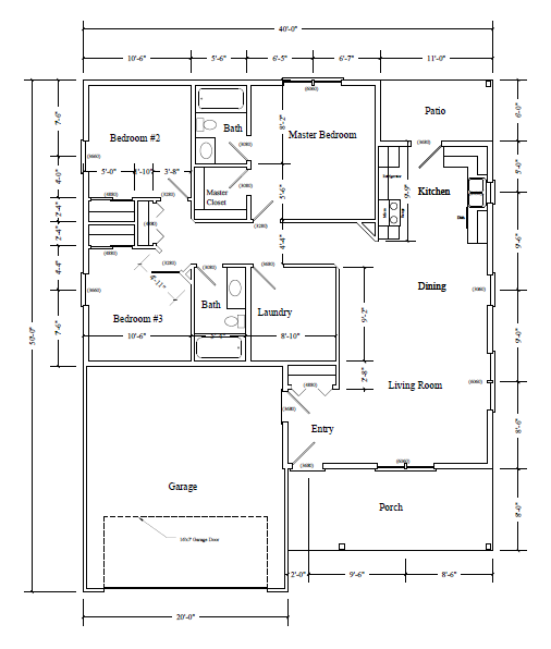
FOR SALE
$337,500
4 Bedrooms ~ 3 Bathrooms ~ 1,548 Square Feet
2407 North Broadway Street
Council Bluffs, IA 51503
This home, located at 2407 North Broadway in Council Bluffs, is currently under construction by NeighborWorks® Home Solutions. The exterior is high impact quality smart board siding. The interior is comprised of luxury vinyl tile flooring, carpet, solid surface countertops and vanity tops with tile.
This floor plan is a modern space layout ranch design on a fully finished basement. This four bedroom offers a functional kitchen with a great room. This home is furnished with ENERGY STAR range/oven, microhood, dishwasher and refrigerator. This home is equipped with an Energy Efficiency Electric Furnace and Electric Water Heater. Also, includes a 16 SEER Heat Pump and a whole house Humidifier.
FOR SALE
$155,000
1 Bedroom ~ 1 Bathroom ~ 600 Square Feet
102 North 8th Street
Council Bluffs, IA 51503
This affordable single-family detached home by NeighborWorks® Home Solutions is located at 102 North 8th Street in Council Bluffs. This home is approved for the NeighborWorks® Income Qualified Housing Homebuyer (IQH) program. Down Payment and Closing Cost Assistance loan at 0% interest may be available to qualified applicants for households earning less than 80% of the Average Median Income (AMI).
This one-bedroom, one-bath, open space layout includes a beautiful modern kitchen and spacious dining room. The interior consists of luxury vinyl tile flooring, laminate countertops, composite vanity tops, and is furnished with an ENERGY STAR® range/oven, microhood microwave, dishwasher and refrigerator. While equipped with a 96% efficiency electric furnace and electric water heater, this home also includes a 16 SEER heat pump. The exterior is comprised of high-impact quality Smartboard siding.
SOLD
$170,000
3 Bedrooms ~ 2 1/2 Total Baths ~ 1,203 Square Feet
102 Paige Lane, Hillside Estates
Council Bluffs, IA 51503
This affordable single-family townhome is in development by NeighborWorks® Home Solutions in the up-and-coming Hillside Estates subdivision, with up to $30,000 in down payment assistance available to qualified households through the City of Council Bluffs Infill Homebuyer New Construction Program!
This three-bedroom, two-and-a-half-bath, open space layout townhome includes a beautiful modern kitchen and spacious dining room. The interior consists of luxury vinyl tile flooring, laminate countertops, composite vanity tops, and is furnished with an ENERGY STAR® range/oven, microhood microwave, dishwasher and refrigerator. While equipped with a 96% efficiency gas furnace and tankless water heater, this home also includes a 13 SEER air conditioner. The exterior is comprised of high-impact quality hardboard siding.
SOLD
$170,000
3 Bedrooms ~ 2 1/2 Total Baths ~ 1,203 Square Feet
106 Paige Lane, Hillside Estates
Council Bluffs, IA 51503
This affordable single-family townhome is in development by NeighborWorks® Home Solutions in the up-and-coming Hillside Estates subdivision, with up to $30,000 in down payment assistance available to qualified households through the City of Council Bluffs Infill Homebuyer New Construction Program!
This three-bedroom, two-and-a-half-bath, open space layout townhome includes a beautiful modern kitchen and spacious dining room. The interior consists of luxury vinyl tile flooring, laminate countertops, composite vanity tops, and is furnished with an ENERGY STAR® range/oven, microhood microwave, dishwasher and refrigerator. While equipped with a 96% efficiency gas furnace and tankless water heater, this home also includes a 13 SEER air conditioner. The exterior is comprised of high-impact quality hardboard siding.
SOLD
$170,000
3 Bedrooms ~ 2 1/2 Total Baths ~ 1,203 Square Feet
110 Paige Lane, Hillside Estates
Council Bluffs, IA 51503
This affordable single-family townhome is in development by NeighborWorks® Home Solutions in the up-and-coming Hillside Estates subdivision, with up to $30,000 in down payment assistance available to qualified households through the City of Council Bluffs Infill Homebuyer New Construction Program!
This three-bedroom, two-and-a-half-bath, open space layout townhome includes a beautiful modern kitchen and spacious dining room. The interior consists of luxury vinyl tile flooring, laminate countertops, composite vanity tops, and is furnished with an ENERGY STAR® range/oven, microhood microwave, dishwasher and refrigerator. While equipped with a 96% efficiency gas furnace and tankless water heater, this home also includes a 13 SEER air conditioner. The exterior is comprised of high-impact quality hardboard siding.
SOLD
$170,000
2 Bedrooms ~ 1 Total Bath ~ 960 Square Feet
316 N. Central Street
Carson, IA 51525
This workforce home is under construction by NeighborWorks® Home Solutions.
This two-bedroom, single-bath, open-concept floor plan includes a beautiful modern kitchen and spacious dining room. The interior consists of luxury vinyl tile flooring, laminate countertops and vanity tops, and is furnished with an ENERGY STAR® range/oven, microhood microwave, dishwasher and refrigerator. While equipped with a 96% efficiency gas furnace and tankless water heater, this home also includes a 15 SEER air conditioner and whole house humidifier. The exterior is comprised of high-impact quality vinyl siding, double-hung windows and asphalt roof shingles.
SOLD
$165,000
2 Bedrooms ~ 1 Total Bath ~ 862 Square Feet
1707 Avenue G
Council Bluffs, IA 51501
This workforce home is under construction by NeighborWorks® Home Solutions.
This two-bedroom, single-bath, open-concept floor plan includes a beautiful modern kitchen and spacious dining room. The interior consists of luxury vinyl tile flooring, laminate countertops and vanity tops, and is furnished with an ENERGY STAR® range/oven, microhood microwave, dishwasher and refrigerator. While equipped with a 96% efficiency gas furnace and tankless water heater, this home also includes a 15 SEER air conditioner and whole house humidifier. The exterior is comprised of high-impact quality vinyl siding, double-hung windows and asphalt roof shingles.
SOLD
$170,000
3 Bedrooms ~ 2 Total Bath ~ 1,257 Square Feet
122 Paige Lane
Council Bluffs, IA 51503
This affordable home will be under construction by NeighborWorks® Home Solutions in the Hillside Estates subdivision, with up to $30,000 in down payment assistance available to qualified households through the City of Council Bluffs Infill Homebuyer New Construction Program!
This floor plan is an open space layout with a functional kitchen. The interior consists of luxury vinyl tile flooring, laminate countertops, composite vanity tops, and is furnished with an ENERGY STAR® range/oven, microhood microwave, dishwasher and refrigerator. While equipped with a 96% efficiency gas furnace and water heater, this home also includes a 15 SEER air conditioner and whole house humidifier. The exterior is comprised of high-impact quality hardboard siding and asphalt shingles.
SOLD
$180,000
3 Bedrooms ~ 2 Total Baths ~ 1,152 Square Feet
4546 North 16th Street
Omaha, NE 68110
This workforce home is in development by NeighborWorks® Home Solutions, with down payment and closing cost assistance available to qualified households through the NWHS MCC Impact Partnership Program!
This three-bedroom, two-bath, open-space ranch style home includes a beautiful modern kitchen and spacious great room on a conditioned crawlspace. The interior consists of luxury vinyl tile flooring, laminate countertops, composite vanity tops, and is furnished with an ENERGY STAR® range/oven, microhood microwave, dishwasher and refrigerator. While equipped with a 96% efficiency gas furnace and tankless water heater, this home also includes a 15 SEER air conditioner and whole house humidifier. The exterior is comprised of high-impact quality cement board siding and includes a one-car attached garage.
SOLD
$170,000
3 Bedrooms ~ 2 1/2 Total Baths ~ 1,203 Square Feet
142 Paige Lane, Hillside Estates
Council Bluffs, IA 51503
This affordable single-family townhome is in development by NeighborWorks® Home Solutions in the up-and-coming Hillside Estates subdivision, with up to $30,000 in down payment assistance available to qualified households through the City of Council Bluffs Infill Homebuyer New Construction Program!
This three-bedroom, two-and-a-half-bath, open space layout townhome includes a beautiful modern kitchen and spacious dining room. The interior consists of luxury vinyl tile flooring, laminate countertops, composite vanity tops, and is furnished with an ENERGY STAR® range/oven, microhood microwave, dishwasher and refrigerator. While equipped with a 96% efficiency gas furnace and tankless water heater, this home also includes a 13 SEER air conditioner. The exterior is comprised of high-impact quality hardboard siding.
SOLD
$170,000
3 Bedrooms ~ 2 1/2 Total Baths ~ 1,237 Square Feet
126 Paige Lane (Lot 10, Hillside Estates)
Council Bluffs, IA 51503
This affordable home was constructed by NeighborWorks® Home Solutions in the Hillside Estates subdivision, with up to $30,000 in down payment assistance available to qualified households through the City of Council Bluffs Infill Homebuyer New Construction Program!
This floor plan is an open space layout with a functional kitchen. The interior consists of luxury vinyl tile flooring, laminate countertops, composite vanity tops, and is furnished with an ENERGY STAR® range/oven, microhood microwave, dishwasher and refrigerator. While equipped with a 96% efficiency gas furnace and water heater, this home also includes a 15 SEER air conditioner and whole house humidifier. The exterior is comprised of high-impact quality hardboard siding and asphalt shingles.
SOLD
$170,000
3 Bedrooms ~ 2 1/2 Total Baths ~ 1,266 Square Feet
118 Paige Lane (Lot 8, Hillside Estates)
Council Bluffs, IA 51503
This affordable home was constructed by NeighborWorks® Home Solutions in the Hillside Estates subdivision, with up to $30,000 in down payment assistance available to qualified households through the City of Council Bluffs Infill Homebuyer New Construction Program!
This floor plan is an open space layout with a functional kitchen. The interior consists of luxury vinyl tile flooring, laminate countertops, composite vanity tops, and is furnished with an ENERGY STAR® range/oven, microhood microwave, dishwasher and refrigerator. While equipped with a 96% efficiency gas furnace and water heater, this home also includes a 15 SEER air conditioner and whole house humidifier. The exterior is comprised of high-impact quality hardboard siding and asphalt shingles.
SOLD
$155,000
2 Bedrooms ~ 1 Total Bath ~ 862 Square Feet
921 1st Avenue
Council Bluffs, IA 51501
This affordable home was constructed by NeighborWorks® Home Solutions, with down payment assistance provided through the City of Council Bluffs Infill Homebuyer New Construction Program.
SOLD
$170,000
3 Bedrooms ~ 2 1/2 Total Baths ~ 1,266 Square Feet
1009 6th Avenue
Council Bluffs, IA 51501
This affordable home was constructed by NeighborWorks® Home Solutions, with down payment assistance provided through the City of Council Bluffs Infill Homebuyer New Construction Program.
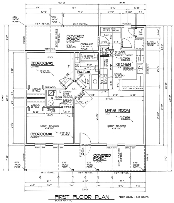
UNDER CONSTRUCTION
$162,000
2 Bedrooms ~ 1 Bathrooms ~ 946 Square Feet
744 Mynster Street
Council Bluffs, IA 51501
This home, located at 744 Mynster Street in Council Bluffs, is currently under construction by NeighborWorks® Home Solutions. The exterior is high impact quality smart board siding. The interior is comprised of luxury vinyl tile flooring, carpet, lamanite countertops and vanity tops with tile.
This floor plan is a modern space layout ranch design on a fully finished basement. This two bedroom offers a functional kitchen with a great room. This home is furnished with ENERGY STAR range/oven, microhood, dishwasher and refrigerator. This home is equipped with an Energy Efficiency Electric Furnace and Electric Water Heater. Also, includes a 16 SEER Heat Pump and a whole house Humidifier.
FOR SALE
$337,500
4 Bedrooms ~ 3 Bathrooms ~ 1,548 Square Feet
2403 North Broadway Street
Council Bluffs, IA 51503
This home, located at 2403 North Broadway in Council Bluffs, is currently under construction by NeighborWorks® Home Solutions. The exterior is high impact quality smart board siding. The interior is comprised of luxury vinyl tile flooring, carpet, solid surface countertops and vanity tops with tile.
This floor plan is a modern space layout ranch design on a fully finished basement. This four bedroom offers a functional kitchen with a great room. This home is furnished with ENERGY STAR range/oven, microhood, dishwasher and refrigerator. This home is equipped with an Energy Efficiency Electric Furnace and Electric Water Heater. Also, includes a 16 SEER Heat Pump and a whole house Humidifier.
SOLD
$170,000
3 Bedrooms ~ 2 1/2 Total Baths ~ 1,203 Square Feet
104 Paige Lane, Hillside Estates
Council Bluffs, IA 51503
This affordable single-family townhome is in development by NeighborWorks® Home Solutions in the up-and-coming Hillside Estates subdivision, with up to $30,000 in down payment assistance available to qualified households through the City of Council Bluffs Infill Homebuyer New Construction Program!
This three-bedroom, two-and-a-half-bath, open space layout townhome includes a beautiful modern kitchen and spacious dining room. The interior consists of luxury vinyl tile flooring, laminate countertops, composite vanity tops, and is furnished with an ENERGY STAR® range/oven, microhood microwave, dishwasher and refrigerator. While equipped with a 96% efficiency gas furnace and tankless water heater, this home also includes a 13 SEER air conditioner. The exterior is comprised of high-impact quality hardboard siding.
SOLD
$170,000
3 Bedrooms ~ 2 1/2 Total Baths ~ 1,203 Square Feet
108 Paige Lane, Hillside Estates
Council Bluffs, IA 51503
This affordable single-family townhome is in development by NeighborWorks® Home Solutions in the up-and-coming Hillside Estates subdivision, with up to $30,000 in down payment assistance available to qualified households through the City of Council Bluffs Infill Homebuyer New Construction Program!
This three-bedroom, two-and-a-half-bath, open space layout townhome includes a beautiful modern kitchen and spacious dining room. The interior consists of luxury vinyl tile flooring, laminate countertops, composite vanity tops, and is furnished with an ENERGY STAR® range/oven, microhood microwave, dishwasher and refrigerator. While equipped with a 96% efficiency gas furnace and tankless water heater, this home also includes a 13 SEER air conditioner. The exterior is comprised of high-impact quality hardboard siding.
SOLD
$170,000
3 Bedrooms ~ 2 1/2 Total Baths ~ 1,203 Square Feet
112 Paige Lane, Hillside Estates
Council Bluffs, IA 51503
This affordable single-family townhome is in development by NeighborWorks® Home Solutions in the up-and-coming Hillside Estates subdivision, with up to $30,000 in down payment assistance available to qualified households through the City of Council Bluffs Infill Homebuyer New Construction Program!
This three-bedroom, two-and-a-half-bath, open space layout townhome includes a beautiful modern kitchen and spacious dining room. The interior consists of luxury vinyl tile flooring, laminate countertops, composite vanity tops, and is furnished with an ENERGY STAR® range/oven, microhood microwave, dishwasher and refrigerator. While equipped with a 96% efficiency gas furnace and tankless water heater, this home also includes a 13 SEER air conditioner. The exterior is comprised of high-impact quality hardboard siding.
SOLD
$170,000
2 Bedrooms ~ 1 Total Bath ~ 960 Square Feet
218 N. Locust Street
Carson, IA 51525
This workforce home is under construction by NeighborWorks® Home Solutions.
This two-bedroom, single-bath, open-concept floor plan includes a beautiful modern kitchen and spacious dining room. The interior consists of luxury vinyl tile flooring, laminate countertops and vanity tops, and is furnished with an ENERGY STAR® range/oven, microhood microwave, dishwasher and refrigerator. While equipped with a 96% efficiency gas furnace and tankless water heater, this home also includes a 15 SEER air conditioner and whole house humidifier. The exterior is comprised of high-impact quality vinyl siding, double-hung windows and asphalt roof shingles.
SOLD
$165,000
2 Bedrooms ~ 1 Total Bath ~ 960 Square Feet
1711 Avenue G
Council Bluffs, IA 51501
This workforce home is under construction by NeighborWorks® Home Solutions.
This two-bedroom, single-bath, open-concept floor plan includes a beautiful modern kitchen and spacious dining room. The interior consists of luxury vinyl tile flooring, laminate countertops and vanity tops, and is furnished with an ENERGY STAR® range/oven, microhood microwave, dishwasher and refrigerator. While equipped with a 96% efficiency gas furnace and tankless water heater, this home also includes a 15 SEER air conditioner and whole house humidifier. The exterior is comprised of high-impact quality vinyl siding, double-hung windows and asphalt roof shingles.
SOLD
$180,000
3 Bedrooms ~ 2 Total Baths ~ 1,152 Square Feet
5343 North 25th Avenue
Omaha, NE 68111
This workforce home is under construction by NeighborWorks® Home Solutions, with down payment and closing cost assistance available to qualified households through the NWHS MCC Impact Partnership Program!
This three-bedroom, two-bath, open-space ranch style home includes a beautiful modern kitchen and spacious great room on a conditioned crawlspace. The interior consists of luxury vinyl tile flooring, laminate countertops, composite vanity tops, and is furnished with an ENERGY STAR® range/oven, microhood microwave, dishwasher and refrigerator. While equipped with a 96% efficiency gas furnace and tankless water heater, this home also includes a 15 SEER air conditioner and whole house humidifier. The exterior is comprised of high-impact quality cement board siding and includes a one-car attached garage.
SOLD
$170,000
3 Bedrooms ~ 2 1/2 Total Baths ~ 1,203 Square Feet
138 Paige Lane, Hillside Estates
Council Bluffs, IA 51503
This affordable single-family townhome is in development by NeighborWorks® Home Solutions in the up-and-coming Hillside Estates subdivision, with up to $30,000 in down payment assistance available to qualified households through the City of Council Bluffs Infill Homebuyer New Construction Program!
This three-bedroom, two-and-a-half-bath, open space layout townhome includes a beautiful modern kitchen and spacious dining room. The interior consists of luxury vinyl tile flooring, laminate countertops, composite vanity tops, and is furnished with an ENERGY STAR® range/oven, microhood microwave, dishwasher and refrigerator. While equipped with a 96% efficiency gas furnace and tankless water heater, this home also includes a 13 SEER air conditioner. The exterior is comprised of high-impact quality hardboard siding.
SOLD
$161,000
2 Bedrooms ~ 1 Total Bath ~ 960 Square Feet
3325 4th Avenue
Council Bluffs, IA 51501
This affordable home was constructed by NeighborWorks® Home Solutions.
SOLD
$170,000
3 Bedrooms ~ 2 1/2 Total Baths ~ 1,237 Square Feet
114 Paige Lane (Lot 7, Hillside Estates)
Council Bluffs, IA 51503
This affordable home was constructed by NeighborWorks® Home Solutions in the Hillside Estates subdivision, with up to $30,000 in down payment assistance available to qualified households through the City of Council Bluffs Infill Homebuyer New Construction Program!
This floor plan is an open space layout with a functional kitchen. The interior consists of luxury vinyl tile flooring, laminate countertops, composite vanity tops, and is furnished with an ENERGY STAR® range/oven, microhood microwave, dishwasher and refrigerator. While equipped with a 96% efficiency gas furnace and water heater, this home also includes a 15 SEER air conditioner and whole house humidifier. The exterior is comprised of high-impact quality hardboard siding and asphalt shingles.
SOLD
$140,000
2 Bedrooms ~ 1 Total Bath ~ 862 Square Feet
1703 Avenue G
Council Bluffs, IA 51501
This affordable home was constructed by NeighborWorks® Home Solutions.
SOLD
$152,000
2 Bedrooms ~ 1 Total Bath ~ 960 Square Feet
1726 4th Avenue
Council Bluffs, IA 51501
This affordable home was constructed by NeighborWorks® Home Solutions, with down payment assistance provided through the City of Council Bluffs Infill Homebuyer New Construction Program.